Leave a Message

Thank you for your message. I will be in touch with you shortly.

Explore Properties

2127 E LAUREL Street

$1,099,000
2127 E LAUREL Street, Mesa, AZ 85213
2127 E LAUREL Street

2127 E LAUREL Street

$1,099,000

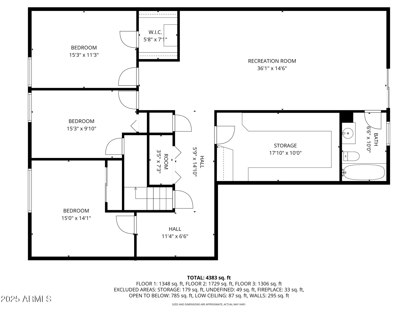
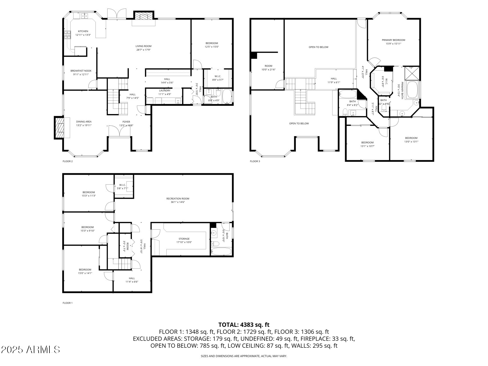
Located in one of the most coveted neighborhoods in Mesa, this 1/2 acre cul de sac property is sure to impress! Over 70% of the lot size is backyard offering an oversized 2021 resurfaced pool with new pumps, filter, heater, & water filler, brand new trampoline, playset, sport court with lights, built in gas BBQ & fire pit, 2025 resurfaced waterfall pond, mature fruit & shade trees, large storage shed, oversized RV parking, & huge covered patios. Under your 2023 new roof, you'll find a new 2024 HVAC unit, a whole house fan ventilation system, 2022 tankless water heater, Tesla charger in garage, a 1400 sqft fully finished basement w/ access to backyard, a room with over-engineered flooring for dance floor or heavy gym equipment, an upstairs game or play room, plenty of storage, 2 fireplaces 6 bedrooms, & 4 bathrooms. A home that needs to be seen to be truly appreciated!!

Features & Amenities

Interior

Total Bedrooms 6
Total Bathrooms 4
Flooring Carpet, Tile
Fireplace Family Room, Living Room
Appliances Electric Cooktop
Other Interior Features High Speed Internet, Granite Counters, Double Vanity, Upstairs, Eat-in Kitchen, Breakfast Bar, Pantry, Full Bth Master Bdrm, Separate Shwr Tub

Exterior

Stories 2
Garage Space 3.0
Water Source City Water
POOL Diving Pool, Heated
ROOF Tile
Lot Features Sprinklers In Rear, Sprinklers In Front, Cul-De-Sac, Grass Front, Grass Back, Auto Timer H 2 O Front, Auto Timer H 2 O Back
Parking RV Access/Parking, RV Gate, Garage Door Opener, Direct Access, Attchd Gar Cabinets, Electric Vehicle Charging Station(s)
Heat type Electric, Ceiling
Air Conditioning Central Air, Ceiling Fan(s), Programmable Thmstat
Sewer Public Sewer
Other Exterior Features Playground, Balcony, Sport Court(s), Tennis Court(s), Built-in Barbecue

Area & Lot

Status Active Under Contract
LIVING SPACE 4,668 Sq.Ft.
LOT SIZE 0.42 Acres
MLS® ID 6929144
Type Residential
Year Built 1990
Architecture Styles Ranch
ELEMENTARY SCHOOL Hermosa Vista Elementary School
MIDDLE SCHOOL Stapley Junior High School
HIGH SCHOOL Mountain View High School
School District Mesa Unified District

Financial

SALES PRICE $1,099,000
REAL ESTATE TAXES $4,703/yr
image

Schedule a Showing

I would love to show you this beautiful property. Please select your preferred date and time below. I will be in touch shortly to confirm your appointment.

Schedule a Showing

I would love to show you this beautiful property. Please select your preferred date and time below. I will be in touch shortly to confirm your appointment.

Thank you for your interest in 2127 E LAUREL Street, Mesa, AZ 85213. We are reviewing your request and will be in touch shortly!

Mortgage Calculator

Estimate your monthly mortgage payment, including the principal and interest, property taxes, and HOA. Adjust the values to generate a more accurate rate.

All estimates are provided for informational purposes only. Actual amounts may vary.
$0,000 Your Payment 20 15 65
$0,000 Your Payment

Work With Erik

Get assistance in determining current property value, crafting a competitive offer, writing and negotiating a contract, and much more. Contact him today.

Let's Connect